Модульный дом BR191

Общая площадь 132 м2
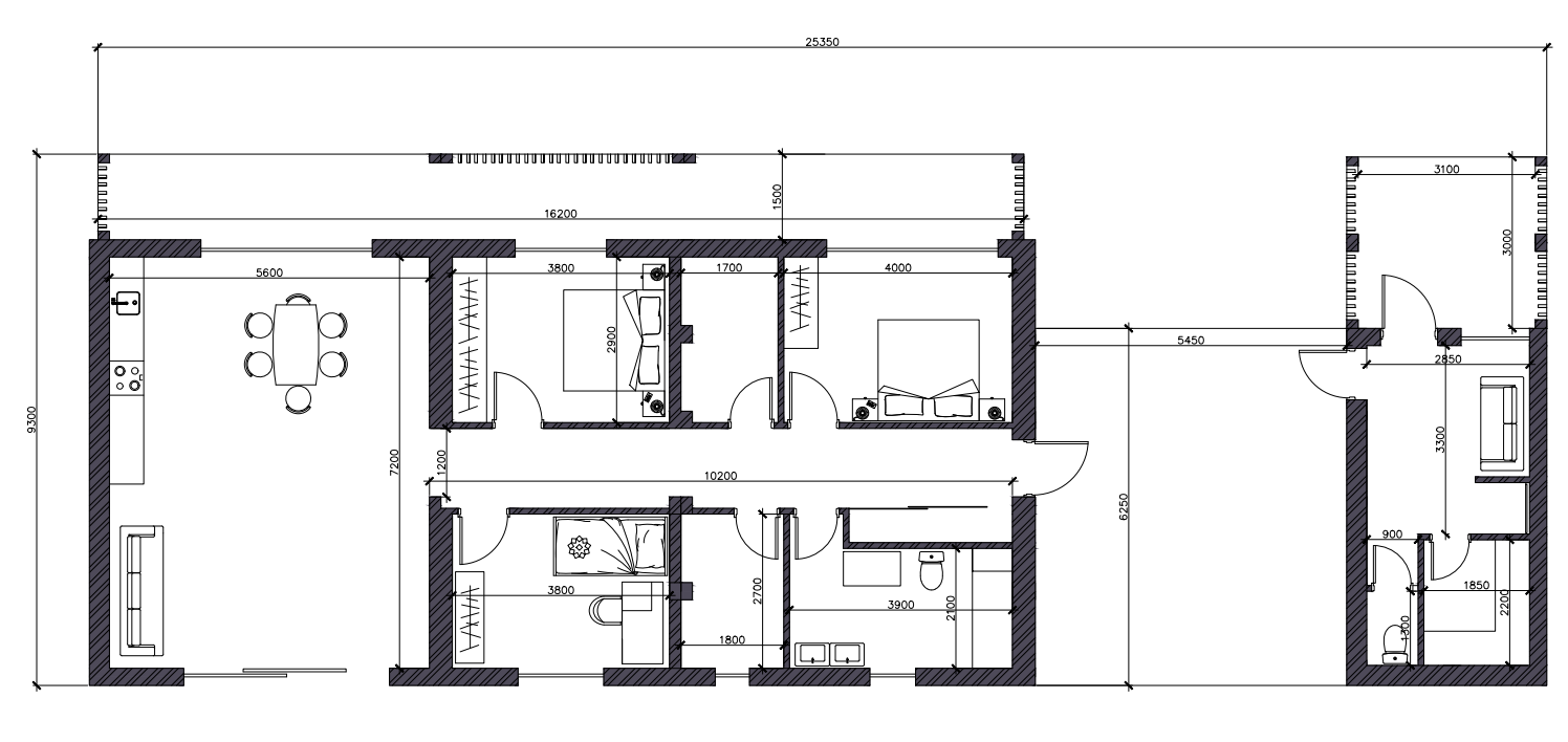
Кухня гостиная 41,6 м2
Котельная 4,4 м2
Санузел 8,75 м2
Спальня гостевая 1 11,65 м2
Спальня гостевая 2 10,26 м2
Спальня 3 11,0 м2
Кладовая 4,93 м2
Холл 16,0 м2
Терраса дома 24,3 м2
Навес для авто 33,6 м2
Комната отдыха 8,55 м2
Душевая 1,75 м2
Парилка 4,07 м2
Санузел 1,17 м2
Терраса 9,0 м2

Подробнее о технологии вы можете узнать здесь.

Срок строительства: 45-270 дней
Стоимость: 50 ₽

Один из самых удобных и комфортных проектов наших домов, в состав помещений входит не только жилая часть, но и банный комплекс с террасой и навес для авто.
В состав помещений дома входят две спальни, детская комната или кабинет, большая кухня-гостинная, большая ванная комната и подсобное помещение, которое может быть использовано, как второй санузел или гардеробная.
Так же, как и во всех проектах, есть отдельное помещение для котельной.

Комплектация Стандарт
Цена по запросу
Стандарт +
Цена по запросу
Все включено
Цена по запросу
Фундамент
Стены Prefab полного заводского изготовления
Кровля металлочерепица
Окна, двери
Внешняя отделка дома
Оперативная служба сервиса в гарантийный и постгарантийный период
Каркас внутренних перегородок
Ограждения, террасная доска на крыльце и террасе
Отделка цоколя
Электрика «под ключ»
Инженерные системы «под ключ» (котел, бойлер, радиаторы, вентиляция, ХВС, ГВС)
Отделка стен гипсокартоном
Система защиты от протечек
Проверка дома независимой экспертизой с помощью Аэродвери
Опция: Терраса 15,0 м2

Выгодная ипотека для строительства дома

Иногда большие замыслы требуют больших затрат. В этом случае подходящая идея — выгодная ипотека. Наши специалисты помогут вам подобрать лучший вариант и получить одобрение на самых выгодных условиях. Расскажите о вашей ситуации по номеру телефона +7 (911) 960-80-98.

Или свяжитесь с нами удобным для вас способом:

To top