Модульный дом BR135
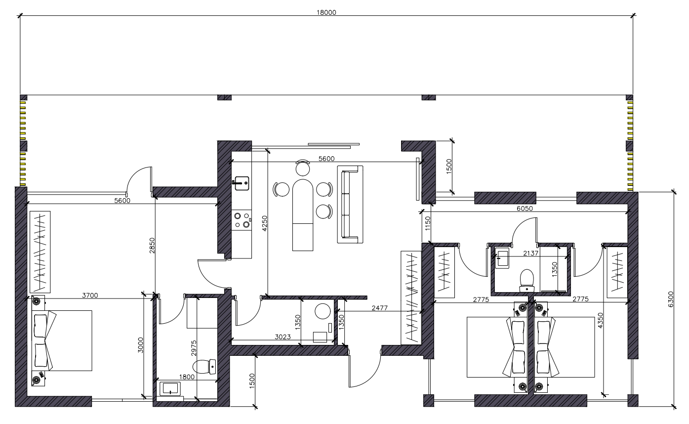
Общая площадь
135,6 м2
Кухня гостиная
23,8 м2
Котельная
4,08 м2
Санузел
2,9 м2
Спальня гостевая 1
10,48 м2
Спальня гостевая 2
10,48 м2
Мастер спальня
27,3 м2
В/К
5,35 м2
Прихожая
3,34 м2
Терраса
40,9 м2
Холл
6,95 м2
Подробнее о технологии вы можете узнать здесь.
Срок строительства:
45-270 дней
Стоимость:
50 ₽
Оптимальный и комфортный для проживания проект дома. В этом доме есть все необходимое!
В состав помещений дома входят три спальни, одна из которых мастер-спальня с отдельной ванной комнатой, большая кухня-гостинная, отдельная вторая ванная комната и отдельное помещение для котельной.
Так же, как и во всех проектах, есть отдельное помещение для котельной.
| Комплектация | Стандарт Цена по запросу |
Стандарт + Цена по запросу |
Все включено Цена по запросу |
| Фундамент | ✔ | ✔ | ✔ |
| Стены Prefab полного заводского изготовления | ✔ | ✔ | ✔ |
| Кровля металлочерепица | ✔ | ✔ | ✔ |
| Окна, двери | ✔ | ✔ | ✔ |
| Внешняя отделка дома | ✔ | ✔ | ✔ |
| Оперативная служба сервиса в гарантийный и постгарантийный период | ✔ | ✔ | ✔ |
| Каркас внутренних перегородок | ✔ | ✔ | |
| Ограждения, террасная доска на крыльце и террасе | ✔ | ✔ | |
| Отделка цоколя | ✔ | ✔ | |
| Электрика «под ключ» | ✔ | ||
| Инженерные системы «под ключ» (котел, бойлер, радиаторы, вентиляция, ХВС, ГВС) | ✔ | ||
| Отделка стен гипсокартоном | ✔ | ||
| Система защиты от протечек | ✔ | ||
| Проверка дома независимой экспертизой с помощью Аэродвери | ✔ | ||
| Опция: Терраса 15,0 м2 | ✔ |
Выгодная ипотека для строительства дома
Иногда большие замыслы требуют больших затрат. В этом случае подходящая идея — выгодная ипотека. Наши специалисты помогут вам подобрать лучший вариант и получить одобрение на самых выгодных условиях. Расскажите о вашей ситуации по номеру телефона +7 (911) 960-80-98.
Или свяжитесь с нами удобным для вас способом: